本文へスキップ

四天王寺前夕陽ヶ丘駅徒歩1分のソウズ四天王寺ビル3階貸店舗事務所!教室等に最適です!

電話でのお問い合わせは06-6774-2477

〒543-0001 大阪市天王寺区上本町6-3-31-143

物件詳細detail

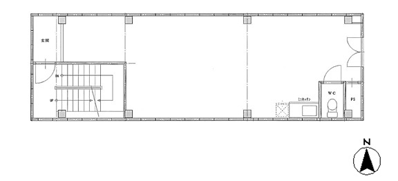
 3階  (貸店舗・事務所)



★ソウズ四天王寺ビルの3階です
★4月末空き予定です

★学習塾・英会話教室等 教室に最適です!
★マッサージ・ネイル・エステ等美容関係使用不可!

★大阪メトロ谷町線「四天王寺前夕陽ケ丘」駅から徒歩1分!
 駅近! 綺麗な事務所です!

★エレベーター無し
★ミニキッチンあり! トイレも専用トイレです!

★ご入居中のため、ご入居前の写真です。
 こんな感じ〜とだけご覧ください!

※図面と現状が異なる場合は現状優先となります。
※1年未満の解約は短期解約違約金(総賃料の1ヶ月分)が必要です。

物件写真【ご入居中のためご入居前の写真です】

      間取り図面です       東側を見ています       東側を見ています       西側を見ています       エアコン・照明のスイッチです       ミニキッチンです       ミニキッチンです       温水洗浄機能付きトイレです       ソーズ四天王寺ビル内の階段です       ソーズ四天王寺ビルの4階です      
 

物件概要

家賃 130,000円
所在地 大阪市天王寺区四天王寺1-9-20 礼金 3ヶ月
間取り 敷金 1ヶ月
専有面積 約49.31u(約15坪) 管理費 10,000円
築年数 1986年(昭和61年)3月 現況 4月末空き予定
 構造 鉄筋コンクリート造・鉄骨造陸屋根
地下1階付地上4階建
その他 エレベーター無し
火災保険・家賃債務保証業者加入要
水道代 月3,000円
最寄駅 大阪メトロ 谷町線
 四天王寺前夕陽ヶ丘駅 徒歩1分
鍵交換代実費
貸主は免税業者